×
[PR]上記の広告は3ヶ月以上新規記事投稿のないブログに表示されています。新しい記事を書く事で広告が消えます。
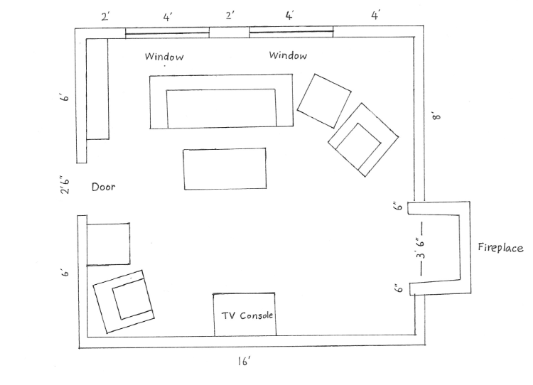
ここ数日やってたプロジェクトを今日提出して、その場で合否言い渡された(笑)
やったプロジェクトがこちら~
窓、ドア、暖炉が決まってて、決められた家具を決められた数だけ、決められたサイズで入れます。

私はこんな間取り図にしました~
ところどころにある正方形はサイドテーブル、そんで左上の長細いのは本棚です。
これの家具をサイトから探してきたりもしました。
そんで絵を描きました~
2Dと3Dをw

こんな感じ~
これに色塗って完成です☆
色塗ったやつはスキャンやってないからないけどw
あ、単品ではないけどドキュメントにまとめたからいいのw
見ればみるほどおかしいとこ多いけど気にしないで!w
絵の基礎なんか全然知らない子が1週間、しかも週末とかはずっと外行ってたからほぼ平日だけで完成させたんだから!w
もちろん学校と平行しながら~
まぁこんなプロジェクトで合格しましたw
で、ここで私の行く大学FIDMを紹介。
美術学校、2年間の専門学校です、正確には18ヶ月で卒業です
私の取る専攻はインテリアデザイン。
就職とかすごいサポートされてます。
結構美術学校としては有名みたいです。
で、受かったんだけど他の4年間大学は申し込むの?って疑問
やっぱりこっちも日本と同じで4年間大学出た方が給料とかいいのね。
就職の範囲広がるし、後々FIDM行きたくなくなるかも、ってことで申し込むかもなんだけど
ぶっちゃけ他の大学に興味ないんだよね。
どこも一緒に見えるし。
そんでたぶん他の大学行くなら私は専攻をアートにするんじゃなくてビジネスにします。
FIDM入る前は4年間大学卒業やってから2年間専門学校行く、とかも考えてたけどやっぱどう考えても時間の無駄なのね。
将来への投資の時間だ、とか思うけど私そういう遠回りとか嫌いなの
ってことで4年間大学行くなら卒業した後は適当に就職探したいって思ってます。
だってやりたいことないし?ってことでここになって振り出しに戻りますw
FIDMに入った場合はインテリアデザイナーを目指して頑張る予定だけど。
プロジェクトやってて楽しかったし母曰く何気に私だいぶ前からインテリアデザイナーになりたい発言してたらしいし。
って感じで私の人生計画が進んでるんだけど、他の大学申し込むならもうFIDMは行かないつもりでやりたいんだよね。
申し込むだけでお金かかるし。
FIDM行く気満々なのに他の大学数個申し込むとかお金の無駄すぎて嫌。
だから申し込むならもう他の大学行く気でやる。
ちなみにFIDMにはもう225ドル払ったんだけどね。
はぁ・・・大学どうしよ・・・
人生なんて終わってしまえっ
やったプロジェクトがこちら~
窓、ドア、暖炉が決まってて、決められた家具を決められた数だけ、決められたサイズで入れます。
私はこんな間取り図にしました~
ところどころにある正方形はサイドテーブル、そんで左上の長細いのは本棚です。
これの家具をサイトから探してきたりもしました。
そんで絵を描きました~
2Dと3Dをw
こんな感じ~
これに色塗って完成です☆
色塗ったやつはスキャンやってないからないけどw
あ、単品ではないけどドキュメントにまとめたからいいのw
見ればみるほどおかしいとこ多いけど気にしないで!w
絵の基礎なんか全然知らない子が1週間、しかも週末とかはずっと外行ってたからほぼ平日だけで完成させたんだから!w
もちろん学校と平行しながら~
まぁこんなプロジェクトで合格しましたw
で、ここで私の行く大学FIDMを紹介。
美術学校、2年間の専門学校です、正確には18ヶ月で卒業です
私の取る専攻はインテリアデザイン。
結構美術学校としては有名みたいです。
で、受かったんだけど他の4年間大学は申し込むの?って疑問
やっぱりこっちも日本と同じで4年間大学出た方が給料とかいいのね。
就職の範囲広がるし、後々FIDM行きたくなくなるかも、ってことで申し込むかもなんだけど
ぶっちゃけ他の大学に興味ないんだよね。
どこも一緒に見えるし。
そんでたぶん他の大学行くなら私は専攻をアートにするんじゃなくてビジネスにします。
FIDM入る前は4年間大学卒業やってから2年間専門学校行く、とかも考えてたけどやっぱどう考えても時間の無駄なのね。
将来への投資の時間だ、とか思うけど私そういう遠回りとか嫌いなの
ってことで4年間大学行くなら卒業した後は適当に就職探したいって思ってます。
だってやりたいことないし?ってことでここになって振り出しに戻りますw
FIDMに入った場合はインテリアデザイナーを目指して頑張る予定だけど。
プロジェクトやってて楽しかったし母曰く何気に私だいぶ前からインテリアデザイナーになりたい発言してたらしいし。
って感じで私の人生計画が進んでるんだけど、他の大学申し込むならもうFIDMは行かないつもりでやりたいんだよね。
申し込むだけでお金かかるし。
FIDM行く気満々なのに他の大学数個申し込むとかお金の無駄すぎて嫌。
だから申し込むならもう他の大学行く気でやる。
ちなみにFIDMにはもう225ドル払ったんだけどね。
はぁ・・・大学どうしよ・・・
人生なんて終わってしまえっ
大学にはUS,Cal StateってレベルがあってUCが高いんだけど。
ぶっちゃけ私はもうUCに入れない時点で大学なんてどうでもいいんだよ
Cal Stateって日本で言う滑り止めみたいな感じで、そりゃ学校に寄ってはレベル高いとこもあるけど私の英語力じゃどうしてもテストとかで成績悪くて無理なの。
数学もクラスじゃ習ったばっかだから出来るけどテストじゃ覚えてるわけもなくずば抜けていいこともないし。
そういう点からもう私の中じゃ私は負け組なの。
従兄弟も姉もみんな頭よくて小さいときから姉と比べられて。
何か誇れるのが欲しかったの。
大学の学歴とか人生でずっと見られる学歴だから。
Cal Stateとか嫌なの。Cal State入った人ですごくなる人もいるけど私は絶対無理でもう無理なの。
Cal State入ったらいつまでたってもUC行った姉と比べられてもう嫌なの。
比べられなくても私が嫌なの
他になにも得意なこともなくて全部姉の下で。
人脈も性格も頭脳も全部全部姉の下でなにもかもが2番でもう嫌なの!
別に普段から2番でいいし姉大好きだし、でもやっぱりプライドもあるから従兄弟内とかで大学どこに行くことになったの?って聞かれた時に胸張って言える大学が欲しかったの。
それがたまたまFIDMで、たまたまインテリア私も好きでやる気もあって。
でもこれは専門学校で将来の就職時に不利になるから、って他の大学も考えさせられるわけで。
もういっそのことこんな出来損ないの子なんか消えてしまえばいいのに
あたしにかかる大学費とか全部姉の方に回ったらいいのに。
私なんかただの汚点だよ
ぶっちゃけ私はもうUCに入れない時点で大学なんてどうでもいいんだよ
Cal Stateって日本で言う滑り止めみたいな感じで、そりゃ学校に寄ってはレベル高いとこもあるけど私の英語力じゃどうしてもテストとかで成績悪くて無理なの。
数学もクラスじゃ習ったばっかだから出来るけどテストじゃ覚えてるわけもなくずば抜けていいこともないし。
そういう点からもう私の中じゃ私は負け組なの。
従兄弟も姉もみんな頭よくて小さいときから姉と比べられて。
何か誇れるのが欲しかったの。
大学の学歴とか人生でずっと見られる学歴だから。
Cal Stateとか嫌なの。Cal State入った人ですごくなる人もいるけど私は絶対無理でもう無理なの。
Cal State入ったらいつまでたってもUC行った姉と比べられてもう嫌なの。
比べられなくても私が嫌なの
他になにも得意なこともなくて全部姉の下で。
人脈も性格も頭脳も全部全部姉の下でなにもかもが2番でもう嫌なの!
別に普段から2番でいいし姉大好きだし、でもやっぱりプライドもあるから従兄弟内とかで大学どこに行くことになったの?って聞かれた時に胸張って言える大学が欲しかったの。
それがたまたまFIDMで、たまたまインテリア私も好きでやる気もあって。
でもこれは専門学校で将来の就職時に不利になるから、って他の大学も考えさせられるわけで。
もういっそのことこんな出来損ないの子なんか消えてしまえばいいのに
あたしにかかる大学費とか全部姉の方に回ったらいいのに。
私なんかただの汚点だよ
PR
この記事にコメントする
